Anzeige, EDCH
EDCH: Die Ausstellung des Infografikers John Grimwade
Neben all den spannenden Talks und Workshops wollen wir euch auch die Ausstellung wärmstens empfehlen, die während der ganzen Konferenz im ersten Stock der Alten Kongresshalle zu sehen ist. Diese widmet sich dem Infografiker John Grimwade und seiner Karriere, die den großen Wechsel vom Stift zum Computer hautnah miterlebt hat. Dabei blieb eins jedoch konstant: die Herangehensweise, klare und einladende Infografiken herzustellen. Von handgemachten Diagrammen bis zu Online-Animationen reflketiert diese Ausstellung die Geschichte des visuellen Erzählens der letzten 40 Jahre.
John Grimwade hat in seinem Blog bereits einige Erklärungen zu seiner Arbeit und den Exponaten gegeben:

Dazu schreibt Grimwade:
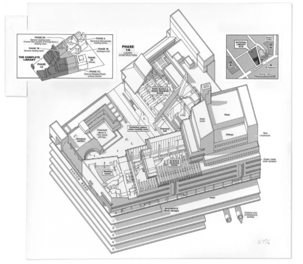
The graphic above was for The Times (1980s), before the new British Library opened. I worked from the architect’s plans. Unfortunately, I ran out of room on the left, and had to tape a piece of artboard on to the side to support the inset. The reduction of 67% was standard for me. I worked at 150% of the final size.

This is a garden for people who use a wheelchair (from the Sunday Times in the late 1970s). The different perspectives seem slightly uncomfortable, and it badly needs a person for scale. I’ve often criticized students for leaving out any trace of humanity, and here I’ve done it myself.
Oder dieses interessante Werk, das die verschiedenen Etappen der Herstellung zeigt:


Natürlich sind bei der Ausstellung noch viel mehr Werke von John Grimwade zu sehen. Ein Besuch im ersten Stock der Alten Kongresshalle lohnt sich also allemal – für Infografik-Nerds, aber auch für alle anderen.
Bilder: © John Grimwade